Home link Home link

Contemporary Entertaining Garden, Swindon

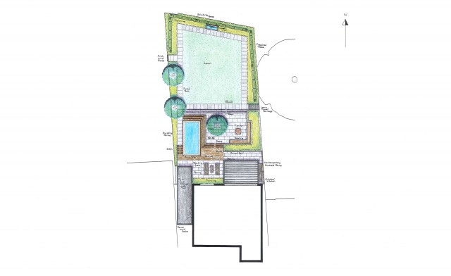
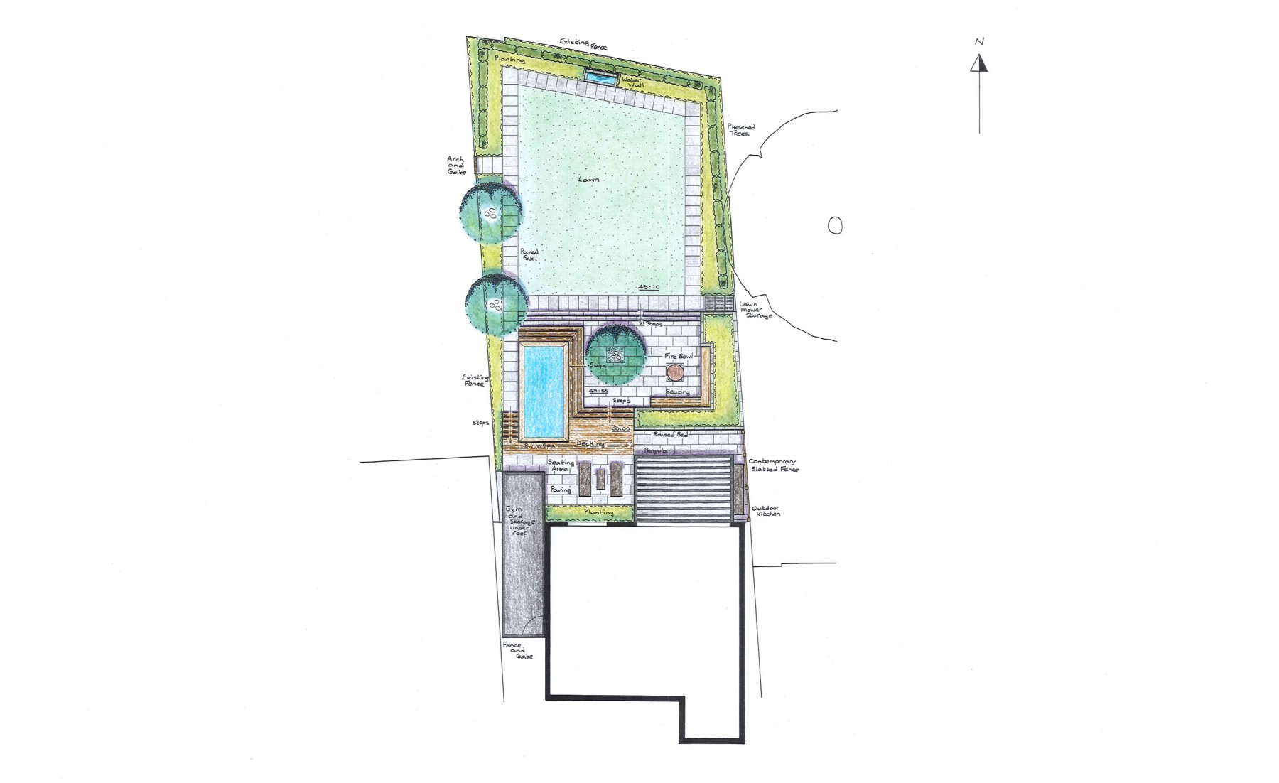
We were excited to be asked to produce a new design for this reasonably sized urban garden. A contemporary outdoor space was required which was to include; a swim spa, fire pit area, space for dinning, seating area under a roof, an outdoor kitchen, a large storage area with a gym and water feature.

Composite decking has been used around the swim spa and steps down to the fire pit area. This contrasts well with the grey porcelain paving (polished concrete from London Stone) used around the rest of the entertaining area.

Other features in the new design include; raised planting beds clad with the grey porcelain, large slate clad water wall (black slate from London Stone ), glass room attached to the house for dining along with an outdoor kitchen, indoor gym with glass windows/doors overlooking the garden, composite decked seating area and fire table, and a porcelain path around the lawn.

The planting scheme compliments the contemporary design, which includes; pleached trees, topiary balls along with half standard lollipop trees. Perennials, ornamental grasses, multi stemmed feature trees and bulbs provide colour and interest through the seasons.

Finally, garden lighting highlighting the entertaining areas, steps, feature trees and water feature creates a lovely atmosphere in the evening.

Status – Construction completed February 2023.

View all projects No more projects No previous projects